51 Intriguing Units Planned for Former Rite Aid in Queen Village
The pharmacy at E. Passyunk & Fitzwater receives zoning permits for a four-story, mixed-use future from a familiar team
Sometimes, we get a heavy dose of Déjà vu when diving into our background research on a given property. When we saw an intriguing update on 704 E. Passyunk Ave., a former Rite Aid that closed recently in Queen Village, we weren’t immediately struck by this feeling. Sitting immediately next to Sweat Fitness, down the block from the venerable Philly AIDS Thrift, and sharing a wall with the lovely Bickering Birds mural by Evan Lovett, it took some further digging before we were hit by just how familiar a development story this was.

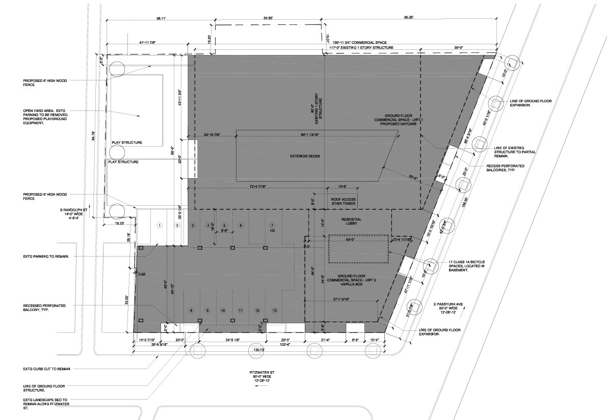
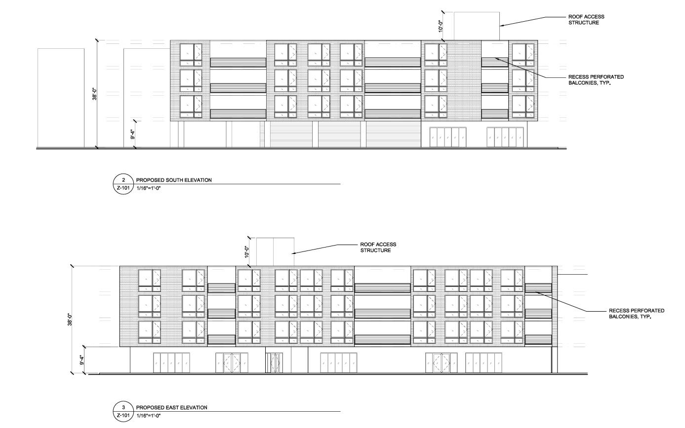
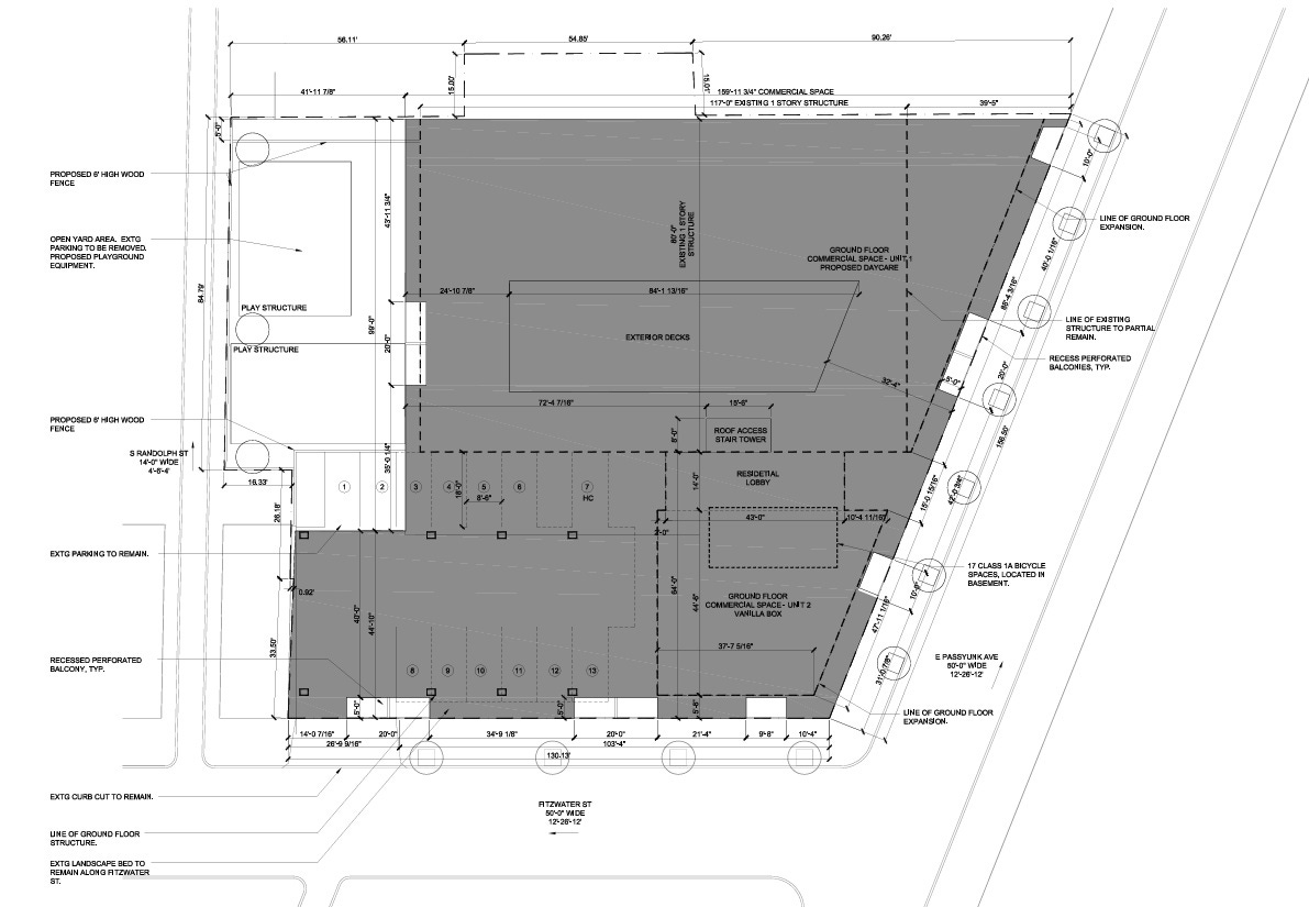
Rite Aid has been in a bit of a pickle recently, filing for bankruptcy and selling several of their local properties over the last year. So, we weren’t totally surprised when we saw a zoning permit for this parcel pop on our radar just yesterday. These plans call for 51 units to go up across four floors, with one vacant commercial space at the corner and one commercial space already earmarked for a proposed daycare. There aren’t many details beyond that, except for the current parking lot to be incorporated into the footprint, with space for 13 cars and underground storage for 17 bicycles. Additionally, there will be outdoor space for a play area along with additional exterior space from several balconies and what looks to be a rooftop deck.


Again, we have no confirmation as to what the finishes will be here, but we can hopefully take a decent guess. When looking more closely at the permit, both the developer (Yoav Shiffman) and the architect (Assimilation Design Lab) are the same as yet another former Rite Aid that’s being developed at 20th & Fairmount. Could this perhaps give us some insights as to what we can expect here?

Honestly, we aren’t too certain if we’ll see similar finishes here, as there are some stark differences between the two properties that cause us some concern. First, the 28-unit, mixed-use proposal at 20th & Fairmount falls within a historic district, meaning the Historical Commission has jurisdiction over the design and materials to be used; this is not the case in Queen Village. It should be noted that the new zoning permit appears to show brick/brick veneer on the upper floors, though this is not binding moving ahead.
Second, and perhaps more concerning, the developers have not presented plans to the local Registered Community Organization (RCO), the Queen Village Neighbors Association (QVNA). Typically, projects over 50 units that sit in a residential area would need to be presented to the local RCO before a trip to Civic Design Review (CDR) for non-binding design feedback. However, it seems as if the developers may be using a bit of a loophole to avoid this additional layer of scrutiny: per the official Civic Design Review triggers, only new dwelling units are included in that 50-unit count, with any units within an existing structure to be excluded from the count. Per the zoning document, only partial demolition of the existing structure is taking place, meaning that if a portion of the old structure is reutilized, it would seemingly allow the units within that footprint to be excluded from the 50-unit threshold and therefore not trigger community/CDR review. Intriguing!
With this project otherwise proceeding by-right, this means no zoning relief was sought either, avoiding a presentation to the QVNA prior to a trip to the Zoning Board of Adjustments (ZBA). So, with zoning permits now in hand, it seems as though the developers can proceed once they procure demolition approval while skirting the public meetings that would typically be required for a project of this size. We hope that this approach is just to limit the administrative requirements of this project and isn’t being done to avoid sub-par designs/materials being reviewed by the typical governing bodies. Either way, it seems as if we could see a new, mixed-use project rise at this prominent spot sometime in the near future; fingers crossed that whatever does go up is worthy of the neighborhood and its wonderful architectural history.






Wow! I live at 7th and Catharine, so I am familiar with the Passyunk/Fitzwater intersection. Great neighborhood--small, eclectic shops that could use more housing, although I don't think the housing will be affordable for most folks. Great to see that creative destruction--the demise of Rite-Aid--is fertilizing the neighborhood.
I'm a homeowner on the 400 block of Monroe, and this Rite Aid was at the end of my block. Between the 7 story monstrosity at 5th and Bainbridge and now this... Just more young white people that don't care about the neighborhood. Ugh. I wish there was more creativity when these developers take over real estate. I've lived on this block so long, I remember when that building was a very VERY dicy bar, the kind that these entitled white kids wouldn't step foot in or live near