60-Unit Proposal and Property for Sale Under the El
The mixed-use plans and land are listed for $1.725 million for the surface lot on N. Front St. in East Kensington
We love a little touch of nostalgia on our real estate journeys, when a familiar site or address triggers a rush of unexpected feelings. While perhaps not anything too exciting for most people, the empty lot at 2221 N. Front St. will always hold a dear place in our heart. This was one of the very first properties we visited professionally literally days into our real estate career pivot. And if you check out the site today, it looks much the same as it did back then.

In January 2022, a seven-story, 60-unit apartment was proposed for the site, with the building even heading to Civic Design Review. A contemporary structure with balconies designed by Cadre Design, this would sit in the middle of the property, with plans for future five-story phases to rise on either side of the initial phase. Those plans, as you can see, never came to be.
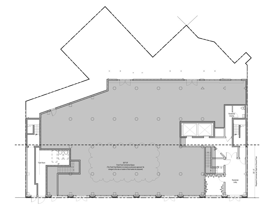
And then earlier today, a brand-new listing from GREA provided us with an update from out of the blue: the property and the plans for thsoe 60 units are now for sale for $1.725 million. The specs for what can be built here have remained mostly the same, though the renderings of what is now called The Triangle Factory show a more traditional brick look topped with a cornice. The zoning permits also give us some additional information, showing the new design is from Ambit Architecture, 20 bike parking spaces are included, and height/density boosts are utilized thanks to the mixed-income and fresh food bonuses - meaning we could see a grocer here on the ground floor eventually. This zoning permit is still good through March 2026, making this an appealing property for a potential buyer who wants to hit the ground running.

This is clearly a big step up for this transit-oriented site, so we hope to see this property sell soon and hopefully get started soon after that. The new look is a step up in our view, and we think the larger footprint of the site makes much more sense compared to the past plans and the additional future structures. And this would align in style with the 2214 N. Front St. across the street, which finished up recently and brings us 14 units in a building called The Emerald, also designed by Ambit. Also, be sure to check out Drats and their vintage wares on the ground floor if you’re in need of a new Whitney shirt.
While the world seems to have changed a lot since we first visited this block back in the old(ish) days, what hasn’t changed has been the continued interest in development along N. Front. With multi-family and other concepts popping up in every available nook and cranny, we’d imagine we’ll have plenty more reason to return to this neck of the woods in the near future.