BREAKING: New Renderings for 84 Units at S. Broad & Carpenter
A seven-story, mixed-use apartment building is proposed for the former McDonald's site in the middle of a construction boom
If you’re anything like us, a well-timed bag of McDoubles is one of the finer culinary delights one can enjoy. However, the McDonald’s that used to sit at 914 S. Broad St. is no longer there, with the old school building demolished in 2021 and sitting as a vacant lot ever since then. However, there had long been reports that developer Carl Dranoff would help take this corner from drab to fab. Let’s scope out the spot before we get to some rather big news.

A quick rewind for some background: Carl Dranoff has been perhaps the biggest developer along the Avenue of the Arts, with decades of time spent building some of the most noteworthy structures along this stretch (Symphony House, Arthaus, among others). In fact, Dranoff will be teaming on a recently sold UArts building several blocks to the north on Broad, continuing his involvement in the area. But now, thanks to a recent email from South of South Neighborhood Association (SOSNA), we have more details for the next phase of this fast-food space of yore.
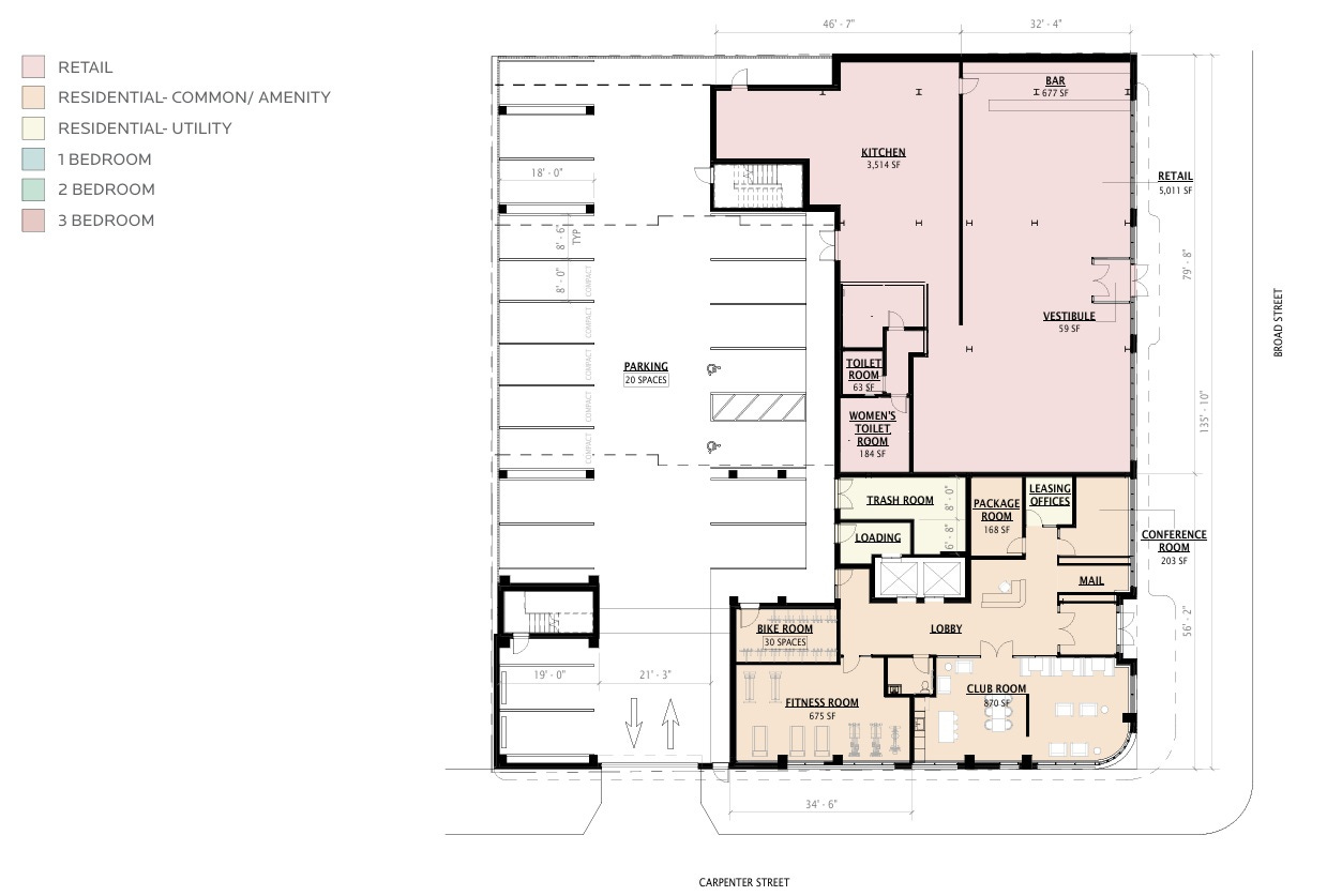
This email informed us of an upcoming zoning meeting on August 20th for a seven-story, 84-unit project. Ground-floor retail and parking for 20 cars/28 bikes are also part of the plans, with this project proceeding by right thanks to the CMX-3 zoning. The 5,000 sqft retail space will take up the northern part of the footprint, with the plans showing both a kitchen and a bar - seemingly teeing up a future restaurant. A lobby, club room, and fitness space will make up most of the remainder of the ground level, with parking access along the less busy Carpenter St. to the south. Units will consist of one-, two-, and three-bedroom spaces, offering a nice variety of options beyond what we often see today in new construction.
While this news mostly aligns with what we’ve known in the past, the exciting update here is a smattering of brand-new renderings. JKRP Architects has handled the design, which offers a contemporary take on the traditional theme of red brick industrial buildings that were once prevalent in the area (more on that in a bit). The corner of Broad & Carpenter is softened with a rounded curve, breaking up the more traditional materials and scale of the rest of the design. The back of the building will consist mostly of dark paneling, with large windows along every side of the structure - including close to the property lines. But enough talking, let’s check it out what looks to be called the 914.

While we could offer some design refinements here or there, this one looks pretty darn good for the space. The parking here is minimal and places the curb-cut in the least impactful area, while the future restaurant will keep Broad St. busy and free from cars crossing the sidewalk. The red brick fits in nicely and the size and scale seem appropriate for one of Philly’s major commercial corridors. We aren’t certain if these will be for-sale condos or for-rent apartments, but we’d lean towards the later if other the other projects in the immediate vicinity are any indication.
And speaking of those projects, this approach very much fits in with everything else going on in the surrounding area. As that very first aerial shot shows, this neighborhood has seen a flood of new development lately. Major projects are still in the works close by while others just blocks away are slated to move ahead, perhaps in short order.
Not everyone may appreciate the change from McNuggets and Cokes to transit-oriented new residences, but we’d argue that this is a step up for this BSL-adjacent property from a land use perspective (especially now that it’s vacant). While the blocks near here may have been an industrial, auto-centric area not that long ago, the future is very much pedestrian-focused as the Avenue of the Arts continues its transformation to the mixed-use plans first envisioned back when Symphony House’s color scheme was the hottest topic of the architectural world.













