UPDATE: New Renderings, More Units for 1400 Frankford Ave. in Fishtown
More density is coming with a sexy design for a prominent corner in the heart of Fishtown
It was late last year that we made our way to 1400 Frankford Ave., at the very busy corner of Frankford & Master. After a sale to developers Eclipse Development, we knew that some sort of multi-family project was coming to the former green space, but we had little details on what was in store. We gathered that something quite nice would rise at this prime corner, and we’re happy to return with an update that exactly that is indeed in store. Let’s revisit the site to refamiliarize ourselves with the property.
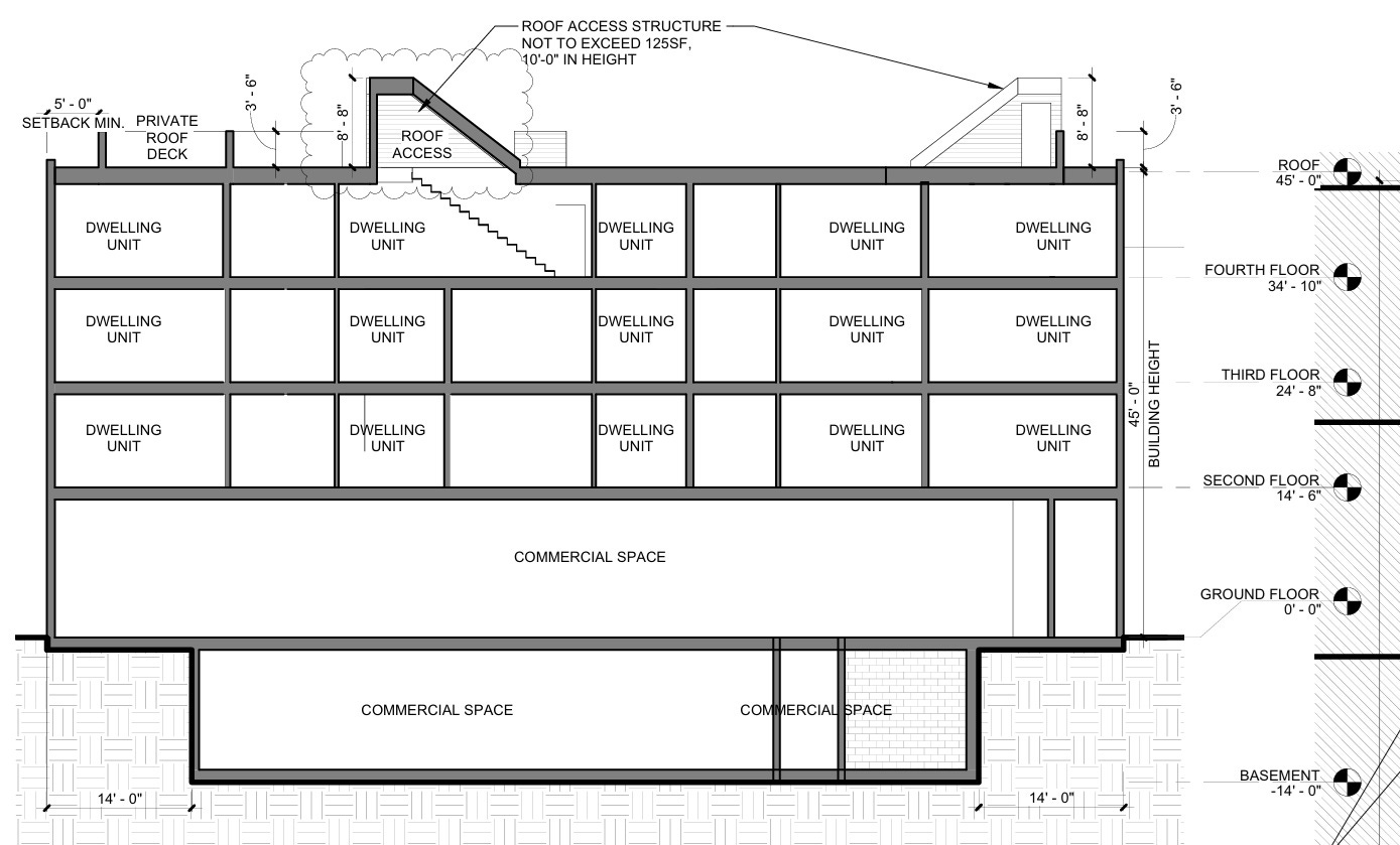
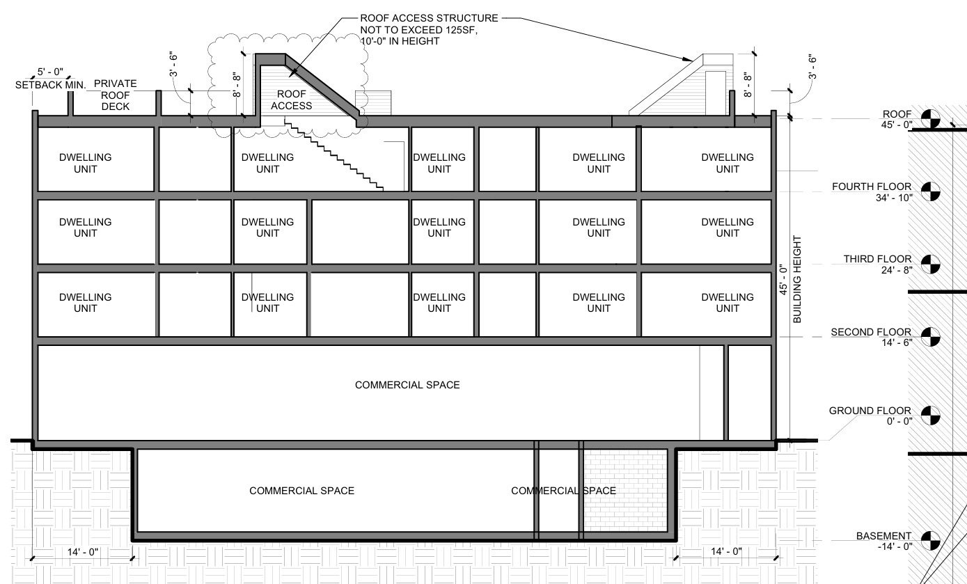
We saw a zoning permit was issued yesterday for the project, now called Fourteen Hundred, which gave us another dash of information: 26 units will now rise on the site, thanks to a payment to the city of $495,600 for a low-income density bonus. Commercial space will take up a majority of the ground floor, with a residential roof deck topping the building, which comes with a look from Canno Design. There won’t be any car parking, but space for 15 bicycles will be included near a small lobby area.
Excitingly, we received a message from Jacob Cooper of MSC Retail with even more news: MSC is leasing the space, which could provide nearly 5,200 sqft to a single tenant or be divvied up into smaller spaces for multiple tenants. These floor plans also show that the residential entrance will be at the far north side of the building on Frankford Ave., with the commercial space wrapping around nearly the entire building along both Frankford and Master.

Perhaps even more exciting is a quintet of renderings that show off the design. The ground level will feature large windows into the retail spaces, with gray brick rising from the sidewalk up to the roof level. An industrial-inspired awning will top the first floor, with floor-to-ceiling windows gracing the top three floors. The corner will feature a rounded flourish, softening the heavy materials and creating a grand design that will be broken up by horizontal bands of what look to be metal beams.


We were hoping for something handsome and substantial for this corner, and this most certainly delivers that. The muted colors complement the surrounding architecture instead of trying to dominate it, but the brick, metal, and glass offer plenty of heft and timelessness. The curved corner provides some architectural interest without resorting to any parlor tricks, and the repeated window elements offer a sense of structure that is often lost with unnecessary massing variations we see in many contemporary buildings across town.
We would have loved if there were affordable units included here, as Fishtown gets pricier by the day, but nearly a half-million bucks heading to the affordable housing fund isn’t a terrible thing. The CMX-2 zoning here is quite limiting, so this payment wouldn’t have even happened had the site been zoned CMX-2.5/CMX-3 - as it honestly already should be. But despite these quibbles, we are very happy to see this moving forward with such a nice design, as this stretch of Fishtown nearly completes its evolution from its old, commercial-heavy past into its mixed-use present and future.








These young guns at Eclipse don't skimp on the design. Wish we could get a few more stories at this location. Nice to see the potential for small format retail.
This is the last green space on lower Frankford Ave. It's a nice design, but that spot 100% should have just stayed a park.